Таунхаус 47 м2 — Проект КРТ "Городец" Буклет проекта
gorodec_logo
popup close

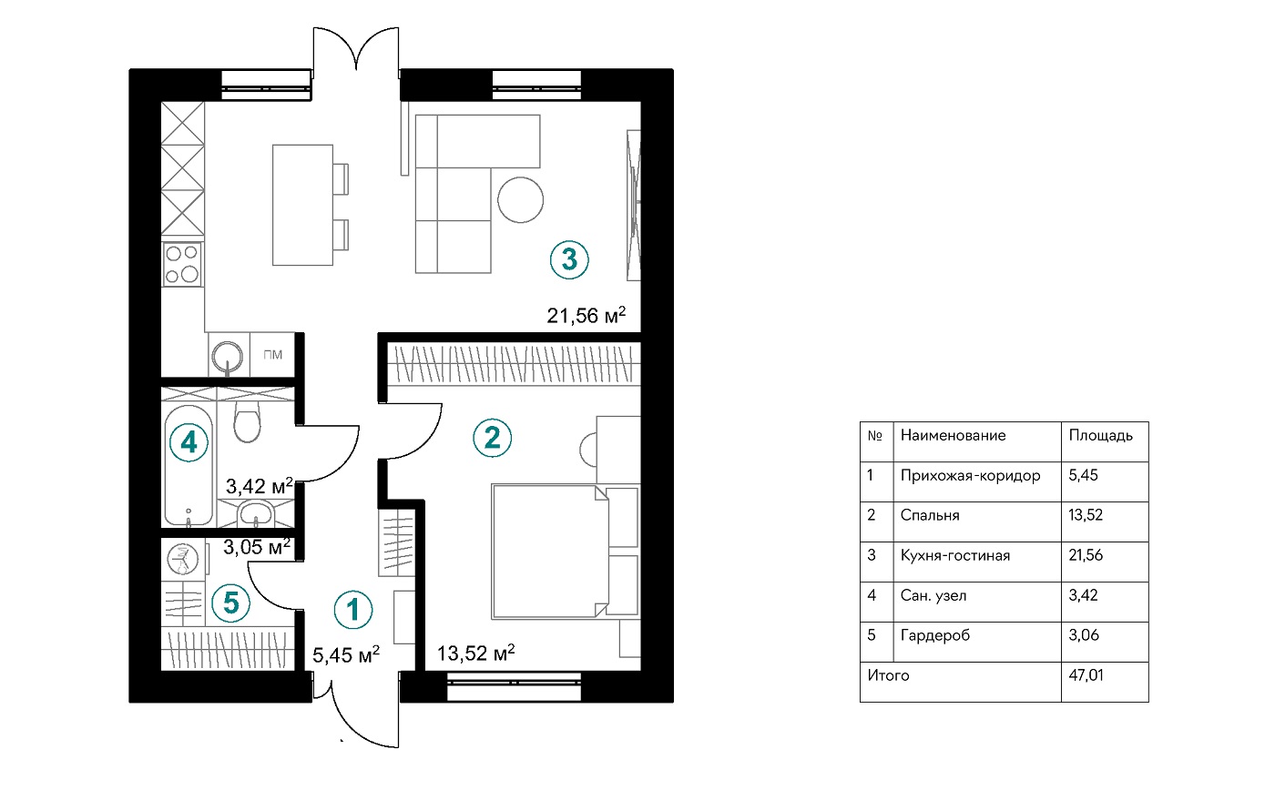
Таунхаус 47 м2

Описание проекта

Общая площадь, м2 - 47
Комнаты, м2 - 13.52,
Количество санузлов - 1
Количество спален - 1

*Данная документация не является окончательной и подлежит только для ознакомления с проектов в целом. Окончательная документация будет указана в Договоре приобретения.

houseDetailAdvantagesCard image

Просторная кухня-гостиная

Позволяет разместить не только зону приготовления пищи, но и дополнительное спальное место

houseDetailAdvantagesCard image

Наличие отдельной спальни

Может вместить двуспальную кровать, шкаф для одежды и комод для белья

houseDetailAdvantagesCard image

Компактность

Более доступный вариант по сравнению с индивидуальным жилым домом или квартирой аналогичного размера в городе

houseDetailAdvantagesCard image

Собственный участок земли

Наличие участка земли рядом с домом даёт возможность обустроить сад, огород или зону отдыха по своему вкусу

Домовладения проекта

9 Таунхаус 1 1 12.58 с 47 м2 2 Свободно
29 Таунхаус 1 1 11.93 с 47 м2 2 Свободно
30 Таунхаус 1 2 11.92 с 47 м2 2 Свободно
50 Таунхаус 1 2 12.38 с 47 м2 2 Свободно
51 Таунхаус 1 3 18.40 с 47 м2 2 Свободно
52 Таунхаус 1 3 18.11 с 47 м2 2 Свободно
53 Таунхаус 1 3 18.03 с 47 м2 2 Свободно
54 Таунхаус 1 3 17.56 с 47 м2 2 Свободно
56 Таунхаус 1 4 13.34 с 47 м2 2 Свободно
57 Таунхаус 1 4 13.34 с 47 м2 2 Свободно
58 Таунхаус 1 4 13.71 с 47 м2 2 Свободно
59 Таунхаус 1 4 13.70 с 47 м2 2 Свободно
60 Таунхаус 1 4 17.61 с 47 м2 2 Свободно
61 Таунхаус 1 4 15.44 с 47 м2 2 Свободно
62 Таунхаус 1 4 14.93 с 47 м2 2 Свободно
63 Таунхаус 1 4 15.71 с 47 м2 2 Свободно
64 Таунхаус 1 4 14.59 с 47 м2 2 Свободно
65 Таунхаус 1 4 19.41 с 47 м2 2 Свободно
66 Таунхаус 1 4 15.34 с 47 м2 2 Свободно
67 Таунхаус 1 4 15.34 с 47 м2 2 Свободно
68 Таунхаус 1 4 15.17 с 47 м2 2 Свободно
69 Таунхаус 1 4 15.16 с 47 м2 2 Свободно
70 Таунхаус 1 4 15.00 с 47 м2 2 Свободно
71 Таунхаус 1 4 15.00 с 47 м2 2 Свободно
72 Таунхаус 1 4 15.09 с 47 м2 2 Свободно
73 Таунхаус 1 4 15.09 с 47 м2 2 Свободно
74 Таунхаус 1 4 15.33 с 47 м2 2 Свободно
75 Таунхаус 1 4 14.68 с 47 м2 2 Свободно
115 Таунхаус 1 12.38 с 47 м2 2 Свободно
131 Таунхаус 1 14.82 с 47 м2 2 Свободно
132 Таунхаус 1 13.2 с 47 м2 2 Свободно
147 Таунхаус 1 13.19 с 47 м2 2 Свободно
148 Таунхаус 1 13.46 с 47 м2 2 Свободно
163 Таунхаус 1 13.46 с 47 м2 2 Свободно
164 Таунхаус 1 13.46 с 47 м2 2 Свободно
179 Таунхаус 1 13.40 с 47 м2 2 Свободно
180 Таунхаус 1 14.11 с 47 м2 2 Свободно
195 Таунхаус 1 10.82 с 47 м2 2 Свободно
305 Таунхаус 2 1 9.84 с 47 м2 2 Свободно
306 Таунхаус 2 1 9.81 с 47 м2 2 Свободно
333 Таунхаус 2 2 9.81 с 47 м2 2 Свободно
334 Таунхаус 2 2 9.81 с 47 м2 2 Свободно
355 Таунхаус 2 3 9.81 с 47 м2 2 Свободно
365 Таунхаус 2 4 15.18 с 47 м2 2 Свободно
378 Таунхаус 2 4 14.94 с 47 м2 2 Свободно
379 Таунхаус 2 4 14.93 с 47 м2 2 Свободно
392 Таунхаус 2 4 15.19 с 47 м2 2 Свободно
393 Таунхаус 2 5 15.19 с 47 м2 2 Свободно
406 Таунхаус 2 5 14.93 с 47 м2 2 Свободно
407 Таунхаус 2 5 14.93 с 47 м2 2 Свободно
420 Таунхаус 2 5 15.19 с 47 м2 2 Свободно
421 Таунхаус 2 6 15.18 с 47 м2 2 Свободно
434 Таунхаус 2 6 14.93 с 47 м2 2 Свободно
435 Таунхаус 2 6 14.93 с 47 м2 2 Свободно
448 Таунхаус 2 6 15.19 с 47 м2 2 Свободно
449 Таунхаус 2 7 15.18 с 47 м2 2 Свободно
462 Таунхаус 2 7 14.93 с 47 м2 2 Свободно
463 Таунхаус 2 7 25 с 47 м2 2 Свободно
476 Таунхаус 2 8 15.16 с 47 м2 2 Свободно
491 Таунхаус 2 8 15.16 с 47 м2 2 Свободно
502 Таунхаус 2 8 15.18 с 47 м2 2 Свободно
503 Таунхаус 2 9 15.18 с 47 м2 2 Свободно
515 Таунхаус 2 9 15.18 с 47 м2 2 Свободно
529 Таунхаус 2 10 15.18 с 47 м2 2 Свободно
534 Таунхаус 2 10 12.69 с 47 м2 2 Свободно
535 Таунхаус 2 11 9.69 с 47 м2 2 Свободно
547 Таунхаус 2 11 9.8 с 47 м2 2 Свободно
548 Таунхаус 2 11 9.83 с 47 м2 2 Свободно
560 Таунхаус 2 11 9.67 с 47 м2 2 Свободно
561 Таунхаус 2 12 9.67 с 47 м2 2 Свободно
573 Таунхаус 2 12 9.82 с 47 м2 2 Свободно
574 Таунхаус 2 12 9.82 с 47 м2 2 Свободно
586 Таунхаус 2 12 9.67 с 47 м2 2 Свободно
587 Таунхаус 2 13 9.67 с 47 м2 2 Свободно
599 Таунхаус 2 13 9.83 с 47 м2 2 Свободно
662 Таунхаус 3 16 10 с 47 м2 2 Свободно
681 Таунхаус 3 17 10 с 47 м2 2 Свободно
682 Таунхаус 3 17 10 с 47 м2 2 Свободно
696 Таунхаус 3 18 10 с 47 м2 2 Свободно
697 Таунхаус 3 18 10 с 47 м2 2 Свободно
721 Таунхаус 3 20 9.59 с 47 м2 2 Свободно
732 Таунхаус 3 20 10 с 47 м2 2 Свободно
733 Таунхаус 3 21 10 с 47 м2 2 Свободно
754 Таунхаус 3 21 10 с 47 м2 2 Свободно
761 Таунхаус 3 23 9.97 с 47 м2 2 Свободно
773 Таунхаус 3 23 9.99 с 47 м2 2 Свободно
784 Таунхаус 3 23 12.1 с 47 м2 2 Свободно
785 Таунхаус 3 24 12.1 с 47 м2 2 Свободно
796 Таунхаус 3 24 9.99 с 47 м2 2 Свободно
797 Таунхаус 3 24 10.02 с 47 м2 2 Свободно
808 Таунхаус 3 24 12 с 47 м2 2 Свободно
824 Таунхаус 3 28 15.18 с 47 м2 2 Свободно
841 Таунхаус 3 28 15.18 с 47 м2 2 Свободно
842 Таунхаус 3 29 15.18 с 47 м2 2 Свободно
880 Таунхаус 3 31 13.93 с 47 м2 2 Свободно
900 Таунхаус 3 31 16.18 с 47 м2 2 Свободно
901 Таунхаус 3 31 15.18 с 47 м2 2 Свободно
920 Таунхаус 3 31 13.93 с 47 м2 2 Свободно
921 Таунхаус 3 32 13.93 с 47 м2 2 Свободно
938 Таунхаус 3 32 15.18 с 47 м2 2 Свободно
947 Таунхаус 3 32 13.89 с 47 м2 2 Свободно
948 Таунхаус 3 33 13.89 с 47 м2 2 Свободно
970 Таунхаус 3 33 13.9 с 47 м2 2 Свободно
971 Таунхаус 3 34 13.9 с 47 м2 2 Свободно
1016 Таунхаус 4 36 15.18 с 47 м2 2 Свободно
1042 Таунхаус 4 36 15.18 с 47 м2 2 Свободно
1043 Таунхаус 4 37 15.18 с 47 м2 2 Свободно
1073 Таунхаус 4 37 15.18 с 47 м2 2 Свободно
1074 Таунхаус 4 38 15.18 с 47 м2 2 Свободно
1110 Таунхаус 4 38 15.18 с 47 м2 2 Свободно
1146 Таунхаус 4 39 15.18 с 47 м2 2 Свободно
1197 Таунхаус 4 43 10 с 47 м2 2 Свободно
1213 Таунхаус 4 43 10 с 47 м2 2 Свободно
1214 Таунхаус 4 44 10 с 47 м2 2 Свободно
1231 Таунхаус 4 44 10 с 47 м2 2 Свободно
1232 Таунхаус 4 44 10 с 47 м2 2 Свободно
1251 Таунхаус 4 44 10.04 с 47 м2 2 Свободно
1252 Таунхаус 4 45 10.04 с 47 м2 2 Свободно
1275 Таунхаус 4 46 13.87 с 47 м2 2 Свободно
1276 Таунхаус 4 46 16.15 с 47 м2 2 Свободно
1282 Таунхаус 4 47 19.1 с 47 м2 2 Свободно
1283 Таунхаус 4 47 14.78 с 47 м2 2 Свободно
1289 Таунхаус 4 47 10.04 с 47 м2 2 Свободно
1303 Таунхаус 4 48 9.62 с 47 м2 2 Свободно
1328 Таунхаус 4 49 9.62 с 47 м2 2 Свободно
1329 Таунхаус 4 49 10.41 с 47 м2 2 Свободно
1354 Таунхаус 4 50 10.42 с 47 м2 2 Свободно
1355 Таунхаус 4 50 9.67 с 47 м2 2 Свободно
1394 Таунхаус 4 54 14.53 с 47 м2 2 Свободно
1417 Таунхаус 4 55 14.53 с 47 м2 2 Свободно
1418 Таунхаус 4 55 14.51 с 47 м2 2 Свободно
1435 Таунхаус 4 56 14.51 с 47 м2 2 Свободно
1436 Таунхаус 4 56 20.33 с 47 м2 2 Свободно
1437 Таунхаус 4 56 19.43 с 47 м2 2 Свободно
1438 Таунхаус 4 56 20.74 с 47 м2 2 Свободно
1439 Таунхаус 4 56 18.13 с 47 м2 2 Свободно
1471 Таунхаус 4 58 14.96 с 47 м2 2 Свободно
1472 Таунхаус 4 59 14.96 с 47 м2 2 Свободно
1507 Таунхаус 4 59 14.96 с 47 м2 2 Свободно
1508 Таунхаус 4 60 14.96 с 47 м2 2 Свободно
1545 Таунхаус 4 60 14.96 с 47 м2 2 Свободно
1546 Таунхаус 4 61 14.96 с 47 м2 2 Свободно
1583 Таунхаус 4 61 14.96 с 47 м2 2 Свободно
1584 Таунхаус 4 62 14.96 с 47 м2 2 Свободно
Показать еще...

Кухня-гостиная

Ванная комната

Спальня

Гардеробная

Прихожая

Что входит в стоимость

СВОБОДНАЯ ПЛАНИРОВКА (ЧЕРНОВАЯ ОТДЕЛКА)

В зависимости от потребностей вашей семьи Вы сможете сами определить необходимое количество комнат и выбрать стиль отделки и дизайн на свой вкус. Благодаря этому Вы создадите оригинальный и неповторимый интерьер в доме.

ОСНОВНЫЕ ПЛЮСЫ: Свобода выбора дизайна и стиля интерьера. Индивидуальный подход к организации пространства.

ДЛЯ КОГО ПОДХОДИТ: Свободная планировка подходит тем, кто хочет создать дом своей мечты и готов потратить время и средства на разработку дизайн-проекта и его реализацию.

ПРЕДЧИСТОВАЯ ОТДЕЛКА (WHITE BOX)

ОСНОВНЫЕ ПЛЮСЫ: Этот тип отделки предполагает выполнение основных работ по подготовке поверхностей к финишной отделке. Это включает в себя выравнивание стен и потолков, прокладку коммуникаций, установку розеток и выключателей. White box позволяет сэкономить время и деньги на черновых работах, а также даёт возможность реализовать собственный дизайн интерьера. 

ДЛЯ КОГО ПОДХОДИТ: Вариант подходит для тех, кто хочет самостоятельно выбрать материалы и стиль отделки, но не готов тратить время на выполнение черновых работ. Также этот вариант подойдёт тем, кто планирует поэтапное выполнение ремонта.

ДИЗАЙН ПОД КЛЮЧ

Наша команда создала дизайн интерьера индивидуально к каждому индивидуальному жилому дому и таунхаусу, который будет соответствовать вашим потребностям и стилю жизни. Мы использовали современные тенденции и стилистические решения, чтобы создать интерьер, который подчеркнёт вашу индивидуальность и вкус.

ОСНОВНЫЕ ПЛЮСЫ: Дизайн под ключ предполагает полный комплекс работ по отделке, включая разработку проекта, подбор материалов, выполнение всех работ и сдачу объекта «под ключ». Это позволяет получить полностью готовый к проживанию дом с индивидуальным дизайном и отделкой. 

ДЛЯ КОГО ПОДХОДИТ: Данный вариант подходит тем, кто ценит своё время и хочет получить готовый результат без необходимости контролировать процесс выполнения работ.