Дом 95 м2
Описание проекта
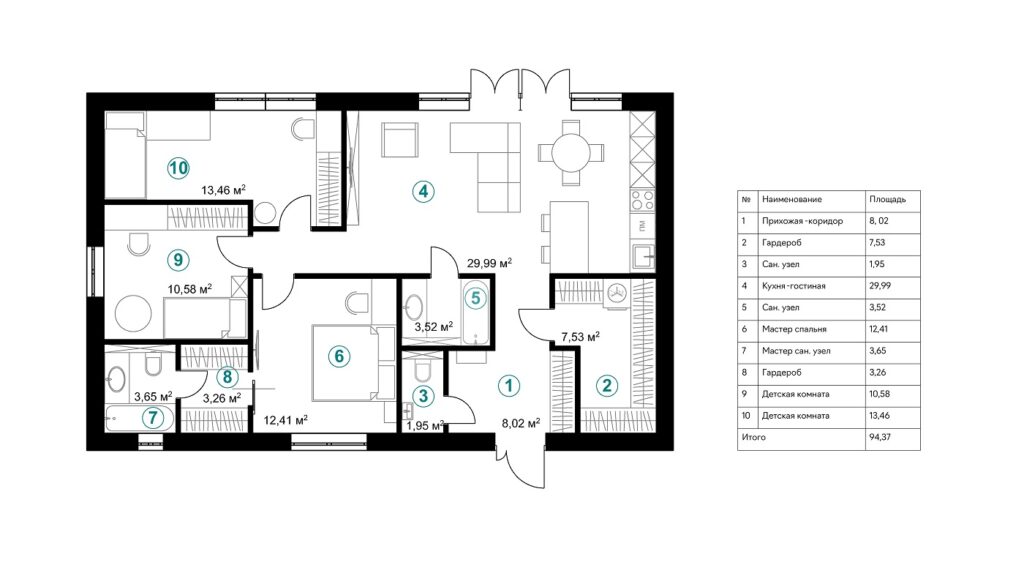
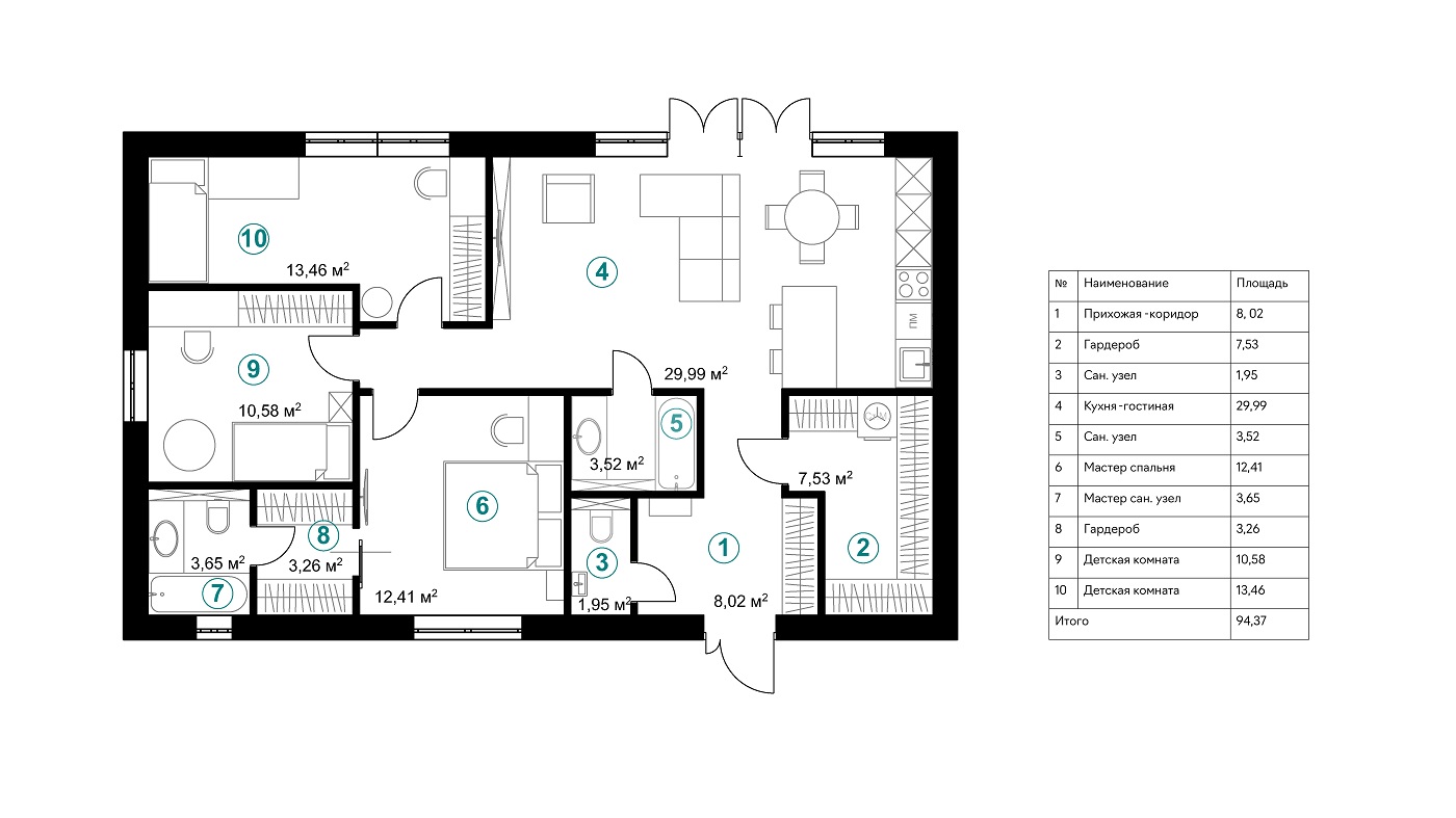
Общая площадь, м2 - 95
Комнаты, м2 -
10.58, 12.41, 12.46,
Количество санузлов - 2
Количество спален - 3
Просторная кухня-гостиная
Позволяет разместить не только зону приготовления пищи, но и дополнительное спальное место
Мастер-спальня
Есть собственный санузел, гардеробная и выход на балкон или террасу. Это делает проживание в ней ещё более удобным
Отдельные детские комнаты
У детей будет своё личное пространство, где они смогут заниматься учёбой, творчеством или просто отдыхать
Собственный участок земли
Наличие участка земли рядом с домом даёт возможность обустроить сад, огород или зону отдыха по своему вкусу.
Домовладения проекта
Что входит в стоимость
СВОБОДНАЯ ПЛАНИРОВКА (ЧЕРНОВАЯ ОТДЕЛКА)
В зависимости от потребностей вашей семьи Вы сможете сами определить необходимое количество комнат и выбрать стиль отделки и дизайн на свой вкус. Благодаря этому Вы создадите оригинальный и неповторимый интерьер в доме.
ОСНОВНЫЕ ПЛЮСЫ: Свобода выбора дизайна и стиля интерьера. Индивидуальный подход к организации пространства.
ДЛЯ КОГО ПОДХОДИТ: Свободная планировка подходит тем, кто хочет создать дом своей мечты и готов потратить время и средства на разработку дизайн-проекта и его реализацию.
ПРЕДЧИСТОВАЯ ОТДЕЛКА (WHITE BOX)
ОСНОВНЫЕ ПЛЮСЫ: Этот тип отделки предполагает выполнение основных работ по подготовке поверхностей к финишной отделке. Это включает в себя выравнивание стен и потолков, прокладку коммуникаций, установку розеток и выключателей. White box позволяет сэкономить время и деньги на черновых работах, а также даёт возможность реализовать собственный дизайн интерьера.
ДЛЯ КОГО ПОДХОДИТ: Вариант подходит для тех, кто хочет самостоятельно выбрать материалы и стиль отделки, но не готов тратить время на выполнение черновых работ. Также этот вариант подойдёт тем, кто планирует поэтапное выполнение ремонта.
ДИЗАЙН ПОД КЛЮЧ
Наша команда создала дизайн интерьера индивидуально к каждому индивидуальному жилому дому и таунхаусу, который будет соответствовать вашим потребностям и стилю жизни. Мы использовали современные тенденции и стилистические решения, чтобы создать интерьер, который подчеркнёт вашу индивидуальность и вкус.
ОСНОВНЫЕ ПЛЮСЫ: Дизайн под ключ предполагает полный комплекс работ по отделке, включая разработку проекта, подбор материалов, выполнение всех работ и сдачу объекта «под ключ». Это позволяет получить полностью готовый к проживанию дом с индивидуальным дизайном и отделкой.
ДЛЯ КОГО ПОДХОДИТ: Данный вариант подходит тем, кто ценит своё время и хочет получить готовый результат без необходимости контролировать процесс выполнения работ.


































































































